| Position | Callsign | Frequency | Symbol |
|---|---|---|---|
| Clearance Delivery | |||
| Orlando Clearance Delivery | MCO_DEL | 134.700 | 4O |
| Ramp Control (events only) | |||
| Orlando West Ramp | MCO_W_RMP | 134.300 | NA |
| Orlando East Ramp | MCO_E_RMP | 129.650 | NA |
| Terminal C Ramp | MCO_C_RMP | 122.275 | NA |
| Ground Control | |||
| Orlando Ground Control West | MCO_W_GND | 121.800 | 3O |
| Orlando Ground Control East | MCO_E_GND | 126.400 | 3H |
| Local Control | |||
| Orlando Local Control West | MCO_W_TWR | 124.300 | 3W |
| Orlando Local Control East | MCO_E_TWR | 118.450 | 3E |
Denotes primary position
| Orlando International SIDs | ||
|---|---|---|
| SID Name | Aircraft Type | Initial Altitude |
| CITR# | Prop/Turboprop | 2,000 |
| ORL# | Turbojet | 7,000 |
| DDANY# | Turbojet | Climb via SID |
| FATHE# | Turbojet | Climb via SID |
| JEEMY# | Turbojet | Climb via SID |
| MZULO# | Turbojet | Climb via SID |
| OSPRY# | Turbojet | Climb via SID |
| RDSOX# | Turbojet | Climb via SID |

Sattelite Radar DTA Diagram
| Common Sattelite Radar DTA Fixes | |
|---|---|
| DTA | Common Fixes |
| WORMS* | KIZER, CRG, OMN, SGJ, SSI |
| VIZTA | CTY, SZW, OCF, BULZI, HEVVN |
| FSHUN* | RSW, SRQ, CYY |
| KNEED | PIE, MCF, LAL |
| TPSTR | TRV, PBI, FLL, MLB, PHK |
| * denotes that DTA is also a fix | |
PHRASEOLOGY: Cleared to (clearance limit), Citrus 1 departure, radar vectors DDANY, then as filed. Maintain 2,000, expect 8,000- 10 minutes after departure...

Departure Radar DTA Diagram
| Common Departure Radar DTA Fixes | |
|---|---|
| DTA | Common Fixes |
| WORMS* | KIZER, CRG, OMN, SGJ, SSI |
| CAMAN | CTY, SZW, OCF, KNOST, BULZI, HEVVN, PATOY, BRUTS |
| FSHUN* | RSW, SRQ, CYY |
| ATLAS | MLB, TRV, PBI, FLL |
| MICKI | TAY, OTK |
| * denotes that DTA is also a fix | |
PHRASEOLOGY: Cleared to (clearance limit), Orlando 7 departure, radar vectors DDANY, then as filed. Maintain 7,000, expect flight level 350- 10 minutes after departure...

MCO RNAV Departure Map
Notice how "expect FLXXX- 10 minutes after departure was not included in this clearance. This is because it is listed on all RNAV charts and thus instructing an aircraft to "climb via SID" does not require us to state this in the clearance.
SOURCE: FAA JO 7110.65 4-3-2 DEPARTURE CLEARANCES
| Aircraft Type | Initial Altitude |
|---|---|
| Prop/Helicopter | VFR AOB 1,500 |
| Turboprop/Turbojet | VFR AOB 2,000 |

MCO Ground Split
Select Airport Operations
| West Complex (36R) | East Complex (35L) |
|---|---|
| OSPRY# | DDANY# |
| RDSOX# | FATHE# |
| FSHUN# | JEEMY# |
| FSHUN | MZULO# |
| MICKI | WORMS |
| CAMAN | ATLAS |
| KNEED | CUSSR |
| VIZTA | TPSTR |

MCO Taxi Flow - North Ops
| West Complex (18L) | East Complex (17R) |
|---|---|
| OSPRY# | DDANY# |
| RDSOX# | FATHE# |
| JEEMY# | MZULO# |
| FSHUN# | MICKI |
| FSHUN | WORMS |
| CAMAN | ATLAS |
| KNEED | CUSSR |
| VIZTA | TPSTR |

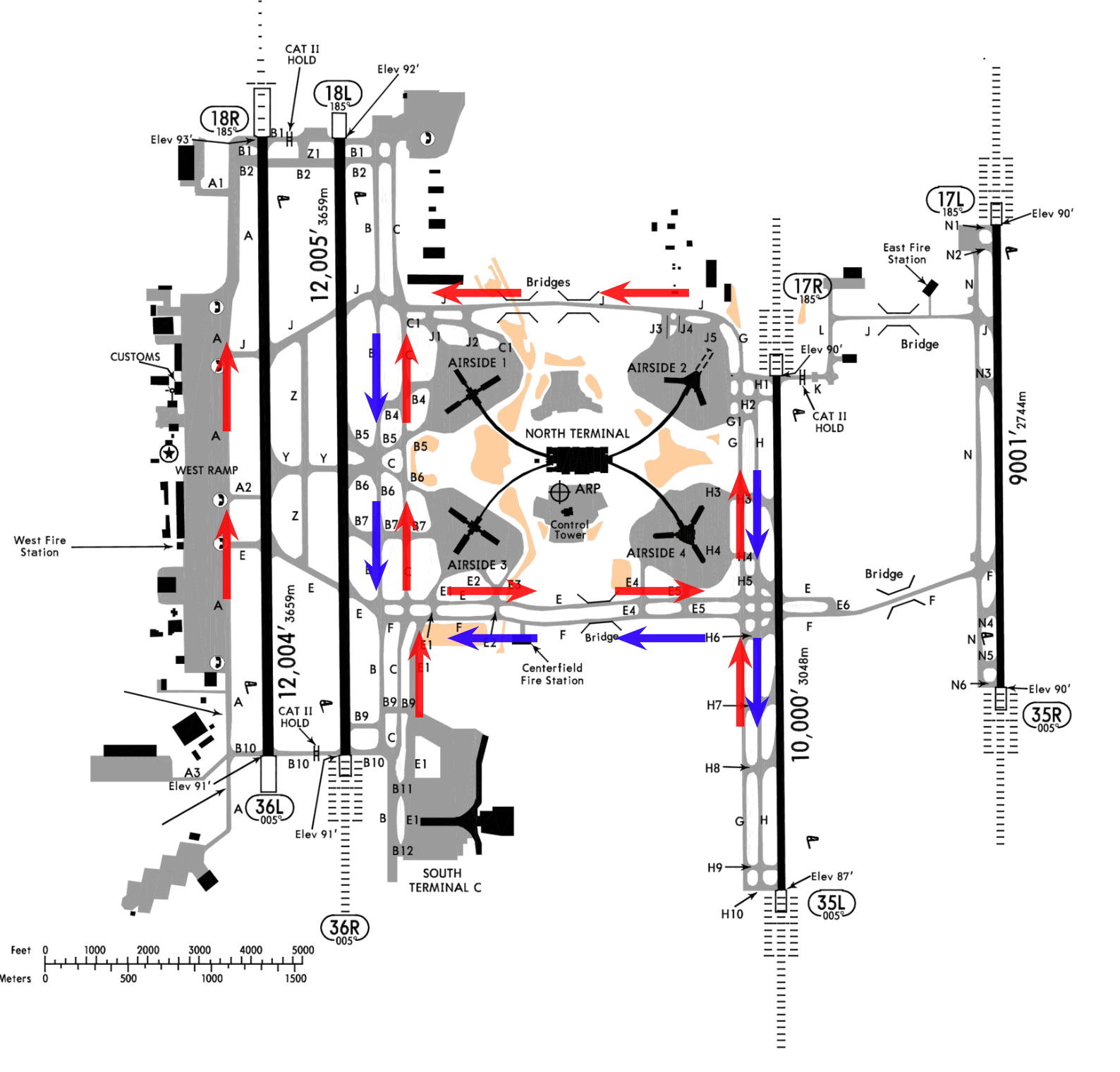
MCO Taxi Flow - Sorth Ops

Local Control Airspace
LUAW is authorized at MCO with the following caveats:
Due to the ASDE-X available at MCO, LC may issue landing clearances if LUAW procedures are in use.

MCO North Departure Fixes
| Runway | SID / DTA | Fix / HDG |
|---|---|---|
| 36L | RDSOX, OSPRY, FSHUN, JEEMY, FATHE, MICKI, WORMS, CAMAN, TPA COMPLEX | KYOTE / H010 |
| 36R | RDSOX, OSPRY, FSHUN, JEEMY, FATHE, MICKI, WORMS, CAMAN, TPA COMPLEX | FACTS / H010 |
| 36L/36R | CITR, ALL VFR | H270 |
| ALL | MZULO, DANNY, TPSTR, ATLAS | GOHOM / H040 |
| 35L/35R | RDSOX, OSPRY, FSHUN, TPA COMPLEX | SAWZZ / H355 |
| 35L/35R | JEEMY, FATHE, MICKI, WORMS | JWOLF / H040 |
| 35L/35R | CITR, ALL VFR | H090 |

MCO South Departure Fixes
| Runway | SID / DTA | Fix / HDG |
|---|---|---|
| ALL | FSHUN | BAAIT |
| ALL | RDSOX, OSPRY | VILNS |
| ALL | MZULO, DDANY | KAAPE |
| 17L/17R | JEEMY, FATHE | KAAPE |
| 17L/17R | WORMS, ATLAS, TPSTR | H160 |
| 17L/17R | MICKI, CAMAN, FSHUN DTA, TPA COMPLEX | H220 |
| 17L/17R | CITR, ALL VFR | H090 |
| 18L/18R | JEEMY, FATHE | VILNS |
| 18L/18R | WORMS, ATLAS, TPSTR | H150 |
| 18L/18R | MICKI, CAMAN, FSHUN DTA, TPA COMPLEX | H205 |
| 18L/18R | CITR, ALL VFR | H270 |
| Complex | Heading | Altitude |
|---|---|---|
| West | 270 | 3,000 |
| East | 090 |
| Turbojet/HP Headings | |
|---|---|
| Complex | Heading |
| ALL | 060 |
| Turbojet/HP Headings | |
|---|---|
| Complex | Heading |
| West | 190 |
| East | 175 |